



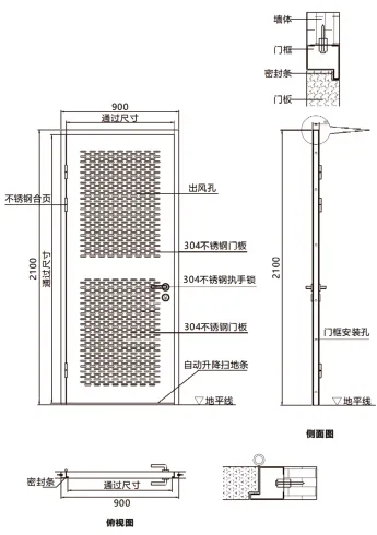
Стальная дверь с возвратным воздухом
Стальная дверь с возвратным воздухом для пищевых, фармацевтических, электронных производств и лабораторий. Внешние жалюзи возвратного воздуха.
Особенности продукта
- Жалюзи возвратного воздуха
- Лазерная резка для воздухообмена
- Воздухообмен
- Трёхстороннее уплотнение
Стальная дверь с возвратным воздухом
Стальная дверь с рециркуляцией воздуха интегрирует вентиляционные решётки в чистую дверь для обратных воздуховодов системы вентиляции. Отверстия в нижней или верхней части позволяют воздуху возвращаться через дверь в обратный воздуховод.
Принцип работы
Двери EMT с рециркуляцией: полотно из стали 1,2 мм с алюминиевыми жалюзийными решётками, регулируемый угол наклона ламелей. Площадь отверстий 15-25% от площади двери по расчёту системы вентиляции. Остальная часть сохраняет герметичность. Жалюзи доступны в одно- или двухслойном исполнении для лучшего контроля воздушного потока. Порошковое покрытие в цвет чистого помещения. Положение и размер отверстий настраиваются по проекту.
Ключевые возможности
- Интегрированная рециркуляция, экономия пространства
- Алюминиевые жалюзи, регулируемый поток
- Герметичность в зонах без рециркуляции
- Настраиваемое положение и размер отверстий
- Упрощение компоновки системы вентиляции
Применение
- Чистые производства
- Фармацевтические GMP-цеха
- Электронные безпылевые цеха
- Лабораторные чистые помещения
Связанные проекты
Смотреть всеПочему EMT?
Конкурентная цена
Интеграция качественных ресурсов поставщиков со всего мира для лучшего соотношения цена/качество
Гарантия качества
Строгая система контроля качества, обеспечивающая надежность и стабильность каждой единицы оборудования
Полный сервис
Полная поддержка от проектирования до послепродажного обслуживания
20+ лет опыта
Более двадцати лет глубокого отраслевого опыта с богатым опытом реализации проектов

Получить предложение и техподдержку


